John Perry Nursery & Children's Centre
- Categories Education
- Clients London Borough of Barking & Dagenham
- Completion 2006
- Budget £1.3m
- Project Team Deborah Saunt
-
Awards
American Institute of Architects Award / UK Award 2006, Winner
RIBA Awards 2006, Winner
British Construction Industry Awards 2006, Winner
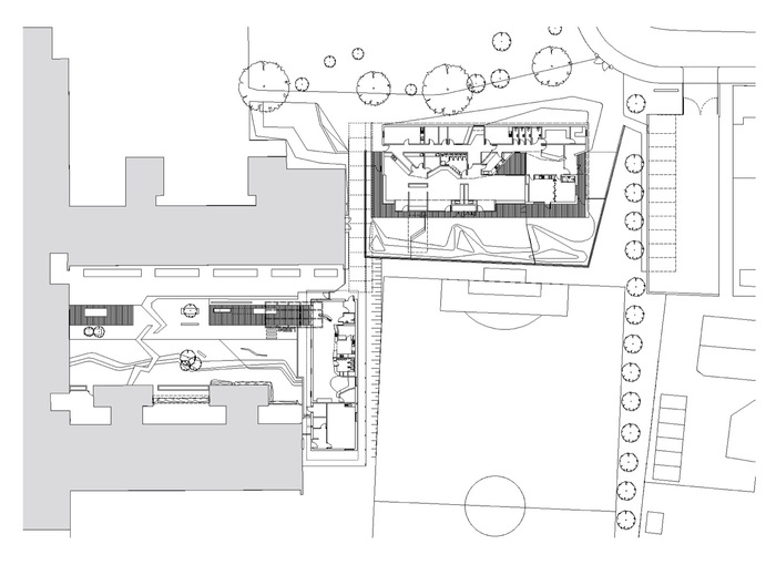
This competition winning scheme provided a masterplan for a purpose-built 26 place FTE Nursery, along with a 50 place wraparound daycare facility that was built two years later. Set within a socially challenged area, it was developed by listening closely to the client’s needs and aspirations, in particular the ambition to connect the children with nature and the world beyond, rather than reinforcing the domestic realm. These are above all public buildings for children.
The main studio spaces are flexible and well lit, and compliment the landscaped activity and teaching zones outdoors. Technically, great care was taken to use economic industrial materials to create a sense of quality and unexpected scale, whilst maximising environmental benefits. Both buildings share a family of details whilst maintaining their own distinct identities.
Structure Engineer: Price & Myers Services Engineer: Pearce & Associates Cost Consultant: Stockdale- Photography Hélène Binet
