St Anne's SureStart Centre
- Categories Arts & Culture, Education
- Clients SureStart Colchester
- Completion 2007
- Budget £850,000
- Project Team Deborah Saunt, David Hills, William Haggard, Jamie Brown
-
Awards
European Union Mies van der Rohe Award 2009, Nominated
RIBA National Awards 2008, Winner
Colchester 2020/RIBA New Contemporary Buildings, Joint Winner
Chicago Athenaeum International Architecture Award for the Best New Global Design 2009
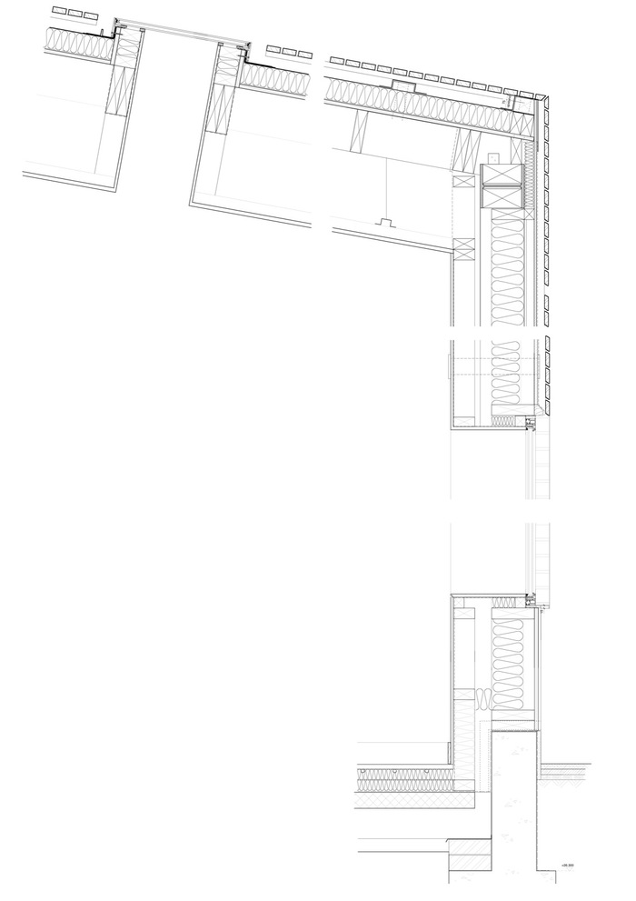
Following an RIBA competition, DSDHA were commissioned to design a SureStart building to serve the St Anne's area of Colchester. A public consultation process followed based around 3 possible sites for the new St Anne’s Sure Start building, where this green field site on Harwich Road, which leads into Parsons Heath recreation ground was selected. The proposed building has been designed to provide a high quality new community facility which responds to the immediate context of Parsons Heath and its topography. A dynamic undulating form creates an identifiable entrance to Parsons Heath, encouraging local enjoyment of the new facility and the Heath beyond. The triangulated roof is an undulating "landscape" which can be seen from many angles and levels from the Heath above and surrounding roads and green spaces, creating a local landmark and beacon.
“Pevsner believed that what is most impressive about Colchester... is the continuity of its architectural interest. It began before the Romans and lasted through the 18th century. Maybe St Anne’s Sure Start is a sign that the town has rediscovered its taste for adventurous architecture”.
RIBA Journal, January 2007
The project was recently featured as part of the Mies Van de Rohe Awards Made in Europe exhibition at the 2014 Venice Biennale. Visit the website here.
Structure Engineer: Jane Wernick Associates