Vesta House: Designing for Openness
A paper delivered by DSDHA Associate John Zhang at the Future of Open Building Conference at ETH Zurich in September 2015.
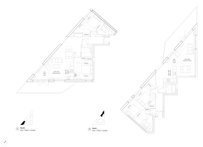
Designed by DSDHA, Vesta House is as an example of a new housing typology that emerged from the delivery of a gateway tower for the Olympic Village at the London 2012 Games. The realisation of this bespoke building exemplifies three aspects of DSDHA’s design methodology that speak to the idea of ‘openness’, namely future openness, contextual openness, and social openness. This paper will explicate how DSDHA anticipated future changes to the urban density of the local area beyond the Games, responded to the immediate specificity of its context, and approached tenure mixture in a radically new way.
View the full paper here
Team: Deborah Saunt
Share:
